logo 10.027.4
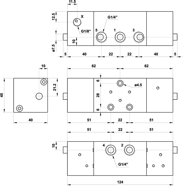
Oscillatore G1/4" con NOT a comando pneumatico



osc 1/4 not com. pneumatico



foto                         simbolo



pag. precedente