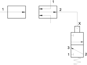
L'amplificatore di segnale è una valvola 3/2 vie a otturatore normalmente chiusa che trasforma un segnale in bassa pressione in un segnale avente pressione da 2 a 8 bar. Comporta un minimo consumo d'aria in posizione di riposo.
Deve essere collegato a un sensore emittente e a un sensore ricevente. È indispensabile utilizzare aria NON lubrificata. La pressione di alimentazione del sensore emittente deve essere compresa tra 0.3 e 2 bar; quella del sensore ricevente tra 0.1 e 0.6 bar.
Il getto d'aria del sensore emittente impedisce il libero flusso dell'aria in uscita dal ricevente. Viene così a crearsi una pressione statica che genera all'uscita del ricevente una pressione di azionamento da inviare al comando dell'amplificatore di segnale. Quando un oggetto interrompe il flusso d'aria fra i due sensori, questo segnale di azionamento si annulla.
La pressione di alimentazione dei sensori deve essere variata proporzionalmente al variare della pressione di alimentazione dell'amplificatore.
La pressione di alimentazione del sensore emittente deve essere maggiore rispetto a quella del sensore ricevente.
Dati tecnici
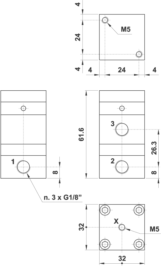
Attacchi: filettati G1/8"
Temperatura di esercizio: max +60°C
Pressione di esercizio dell'amplificatore: 2 ... 8 bar
Pressione di azionamento dell'amplificatore: 0.03 ... 0.6 bar
Pressione di alimentazione del sensore emittente: 0.3 ... 2 bar
Pressione di alimentazione del sensore ricevente: 0.1 ... 0.6 bar