logo Cilindri corsa breve
disegno in sezione



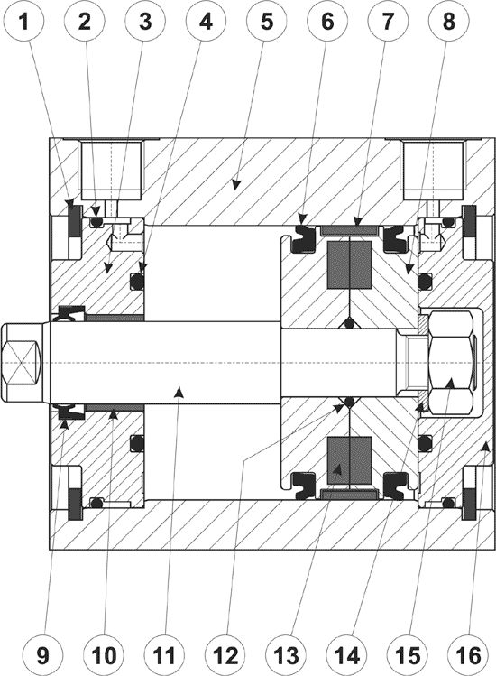
disegno valido dall'alesaggio 32 all'alesaggio 100



sezione corsa breve



1. Anello SEEGER per fissaggio testata
2. O-Ring per tenuta testata: NBR o VITON
3. Testata anteriore: alluminio
4. O-Ring paracolpi: NBR o VITON
5. Camicia: alluminio profilato, calibrato e anodizzato
6. Guarnizione a labbro per pistone: poliuretano o VITON
7. Anello guida per pistone: bronzo PTFE (solo per pistone in alluminio)
8. Pistone: tecnopolimero o alluminio
9. Guarnizione stelo: poliuretano o VITON
10. Boccola guida: materiale autolubrificante
11. Stelo: acciaio C45 cromato o INOX AISI 304
12. O-Ring per tenuta pistone: NBR o VITON
13. Magnete: plastoferrite
14. Rondella piana
15. Dado per bloccaggio stelo
16. Testata posteriore: alluminio


pag. precedente