logo 7513A CC





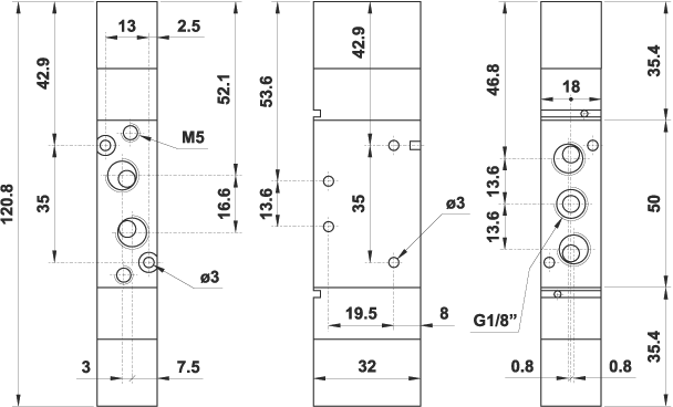
7513A CC

7513A CC


symbol Технические данные
Предыдущая страница

 

AUTOCAD ver 14. DWG

JPG  

ACIS - SAT

STEP